
Umbau und Sanierung eines Mehrfamilienhauses
Die uns hier gestellte Aufgabe war, ein bestehendes Mehrfamilienhaus aus der Gründerzeit mit neuem Leben zu füllen, ohne die Anmut des Gebäudes, insbesondere der Sandsteinfassade zu gefährden.
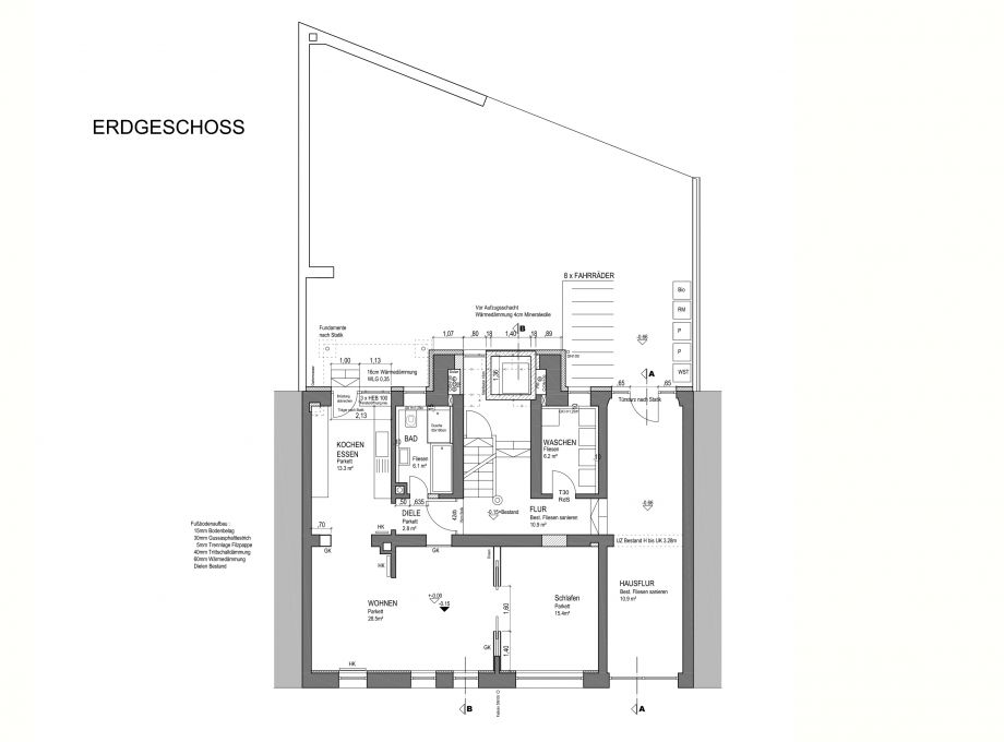
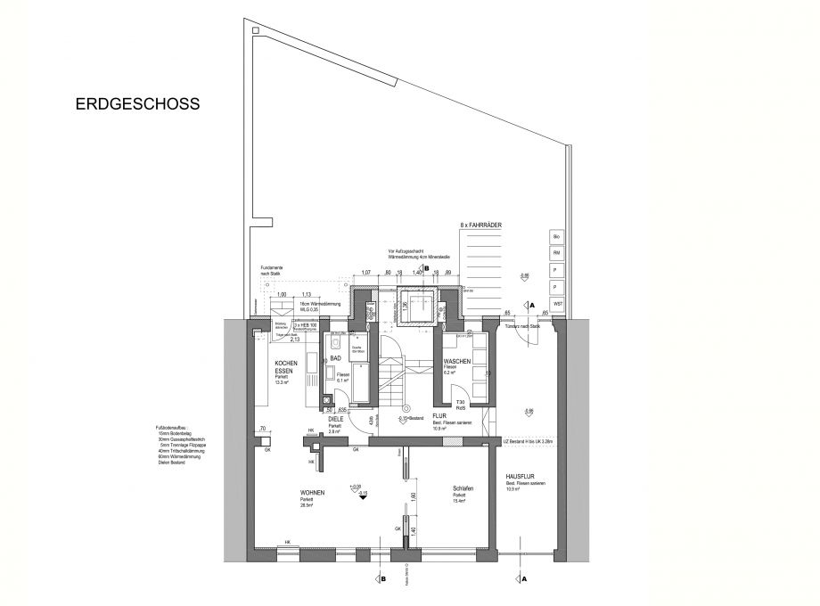
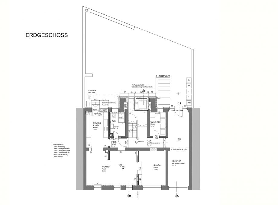
Die bestehende Belichtung war nicht mehr zeitgemäß, weshalb verschiedene Fensteröffnungen in der Sandsteinfassade hergestellt werden sollten. Hierfür wurden mit chirurgischer Präzision die neuen Fassadenausschnitte an die bestehende Fassade angepasst. Um der Energieeinsparverordnung Genüge zu tun und gleichzeitig die Fassade nicht zu zerstören wurde auf eine Außendämmung verzichtet und dafür eine Silikat-Dämmung an der Innenseite des Gebäudes aufgebracht. Dies erforderte ebenfalls viel Präzision und handwerkliches Geschick mit entsprechend fachlicher Kompetenz. Im Gebäude wurde in das bestehende Treppenhaus eine Aufzugsanlage integriert. Das Dachgeschoss wurde auf zwei Ebenen ausgebaut. Gleichzeitig wurde eine Dachterrasse geschaffen, von welcher man einen unglaublichen Ausblick über die Nürnberger Nordstadt genießen kann.







