
Neubau eines Einfamilienhauses
Auf dem Gelände einer ehemaligen Gärtnerei wurde für die Bauherren ein großzügiges Einfamilienhaus mit viel Platz für die ganze Familie geschaffen. Ziel war es, ein zeitgemäßes helles und doch privates Wohnen zur ermöglichen.
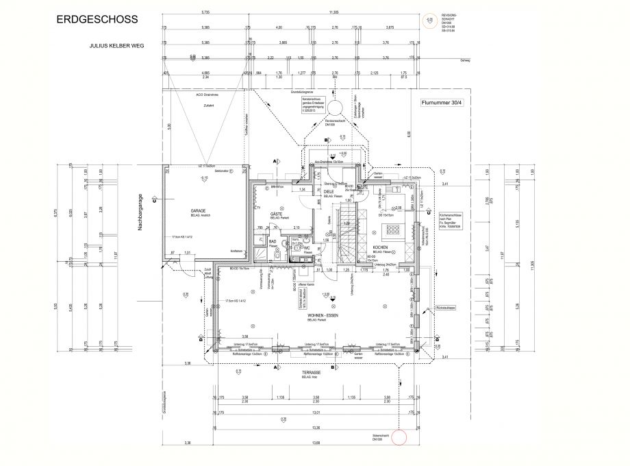
Der Neubau wurde deshalb an die nördliche Grundstücksgrenze gerückt und bis auf den einladenden Eingangsbereich zurückhaltend gestaltet. Dadurch entstand im südlichen Grundstücksbereich eine großzügige Gartenfläche. Die ca. 60qm großen Wohnräume im Erdgeschoss gehen mit üppigen Fensterflächen und Schiebeelementen direkt in den Gartenbereich über, der darüber liegende über die komplette Fassade durchgehende Balkon bietet allen Schlafräumen im Obergeschoss, sowohl der beiden Kinderzimmer, als auch der Eltern einen Zugang ins Freie ohne in den Garten hinab zu müssen. Gleichzeitig dient der Balkon als sommerlicher Wärmeschutz und Verschattungselement.
Das Bad im Obergeschoss verfügt über eine freistehende Badewanne und eine Sauna. Im kompletten Erdgeschoss wurde eine Fußbodenheizung installiert. Alle elektrischen Funktionen des gesamten Gebäudes einschließlich der Nebengebäude werden über ein Bussystem gesteuert, welches auch über das Smartphone bedient werden kann.







