
Neubau eines Einfamilienhauses
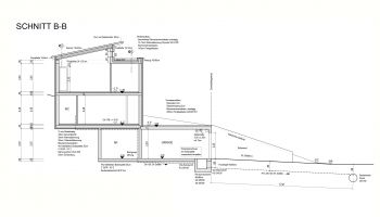
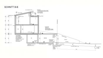
Ein durchaus großzügiges Grundstück in Hanglage sollte hier nachverdichtet und zusätzlicher Wohnraum zur Vermietung geschaffen werden. Es gab verschiedene Erschließungsmöglichkeiten über zwei am Grundstück verlaufende Zufahrtsstraßen, die jedoch einen sehr deutlichen Höhenunterschied aufwiesen. Die Bauherren bewohnten bereits ein Gebäude im oberen Bereich des Grundstücks, welches von der höher liegenden Straße erschlossen wurde. Die Erschließung des neuen Gebäudes sollte über die unter liegende Zufahrtstraße erfolgen. Aufgrund eines sehr stark geneigten Hanges war das bestehende Grundstück denkbar ungeeignet für die Errichtung des Neubaus. Da die Ausrichtung dagegen vorteilhaft war, lohnte sich der Versuch und wir nahmen die Herausforderung an.
Die Doppelgarage wurde direkt an der Straße in den Hang geschoben. An den Garagen vorbei führt die fußläufige Erschließung auf die sich aus den Garagen ergebene Dachterrasse direkt in den Wohnraum, welcher ebenso in den Hang gesetzt wurde. Das Sichern gegen ein Abrutschen des Hanges musste während der gesamten Bauphase gewährleistet sein. Dafür wurden laufend Kontrollen durchgeführt.
Im hinteren Bereich wurden die Nebenräume wie ein WC für Gäste und Abstellräume angelegt. Über eine offene Innentreppe gelangt man vom Wohnraum in die Privaträume wie Bade-, Schlaf- und Kinderzimmer. So ist auch eine Trennung vom öffentlichen zum privaten Raum gewährleistet. Vom freistehenden Obergeschoss kann man einen Ausblick über den Wiesengrund ausgiebig genießen.







